Skip to main content

KESWICK
design, permitting and construction

Design, Permitting & Construction

Keswick

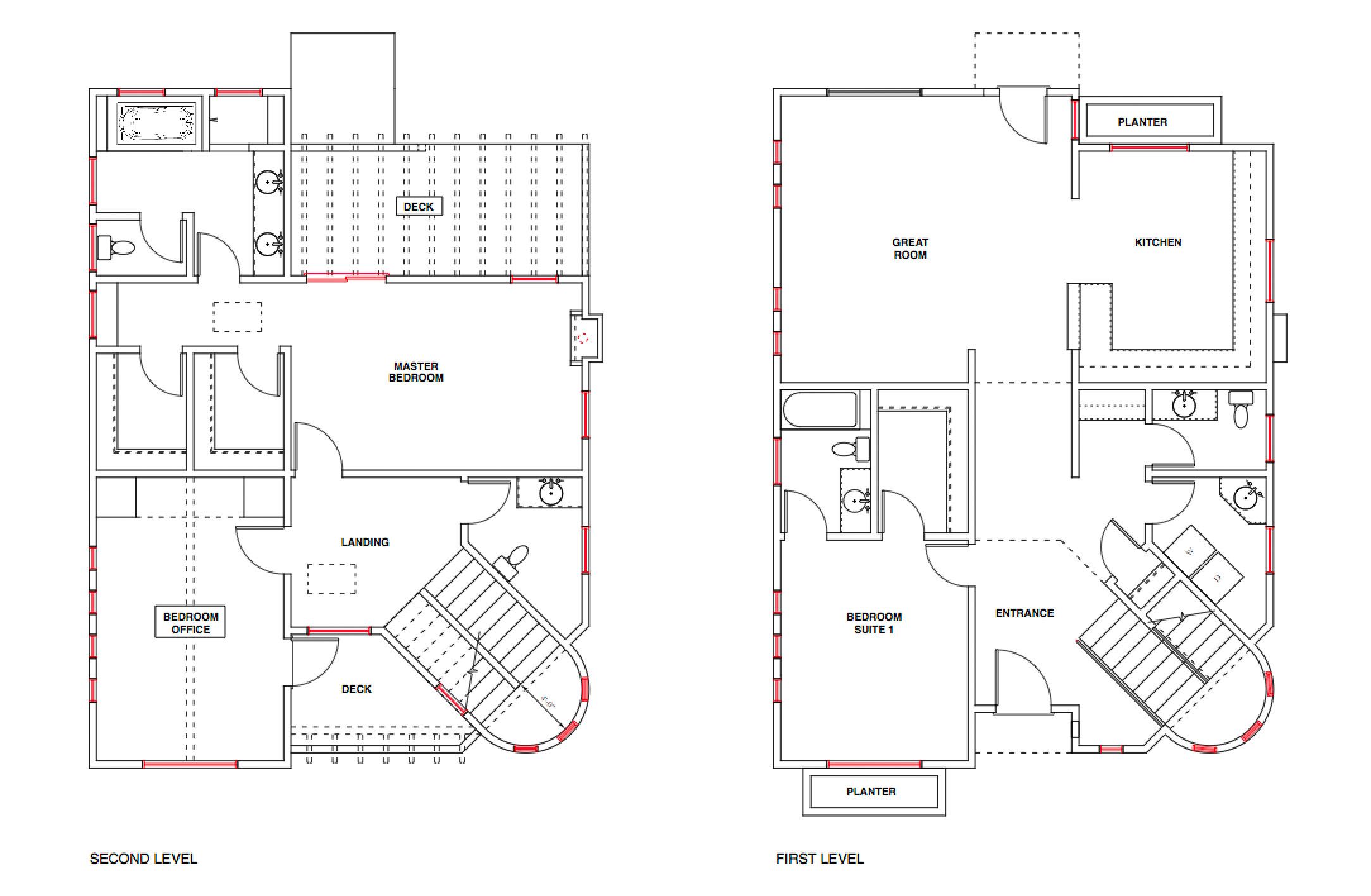
Hybrid design, 2,690 square feet house including the garage

This home is a hybrid design to fit the needs and desires of the clients and has an area totaling 2,690 square feet including the garage.
The mail box is integrated into the wall adjacent to the main entry door allowing for an indefinite amount of mail delivery to a secured interior area next to the front door. It also has an accessible area below the stair landing housing the security computer system.
It is on 2 levels with the master bedroom suite on the second level facing the backyard while another room facing the front of the house functions as an office right off the landing on one side and a separate full bathroom on the other. Along with the 3rd bedroom suite on the first level, it becomes a 3 bedroom, 3 ½ bath home with separate laundry room adjacent to the ½ bath.
Floor plans and photographs are included for clarity.

DAVID SHOUCAIR Architectural Design + Permitting + Construction Contractor License #547964